Pozdravljeni,
Predstavljajte si zaživeti v novem, energetsko varčnem 2-sobnem stanovanju v Radencih, kjer se udobje in trajnost združujeta v popolno bivanjsko izkušnjo.....
KJE: Radenci - ob vsej potrebni infrastrukturi, oddaljeno le nekaj korakov od centra mesta in zdravilišča Radenci ter golf igrišča.
Tukaj se razvija čudovita arhitekturno zasnovana soseska treh stanovanjskih objektov skupaj s pripadajočo parkirno površino z naborom 110 stanovanj različnih velikosti. Stanovanja so dimenzijsko prilagojena invalidnim in starejšim osebam, z možnostjo oskrbe in nege na domu, ter nudijo majhne stroške porabe s vgrajeno toplotno črpalko ter talnim ogrevanjem.
Trenutno je v gradnji stavba C na severni strani obravnavane celote. Na vzhodni in južni strani večstanovanjskih stavb je umeščena parkirna površina. Vse stavbe so podkletene z eno kletjo.
OBJEKTIVNI PODATKI:
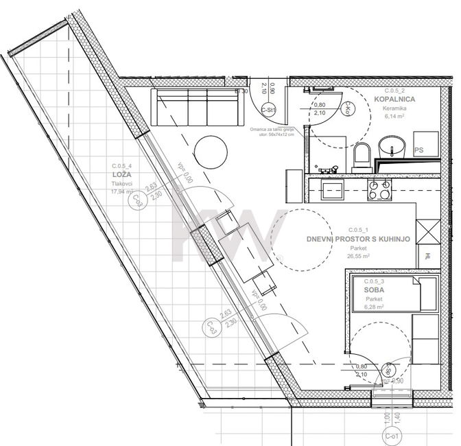
Stanovanje zajema: dnevni prostor s kuhinjo in jedilnico 26,55 m2 z izhodom na ložo, spalnica 6,28 m2, kopalnica 6,14 m2, skupaj bivalno: 38.97m2, ostalo: loža: 17,94 m2, shramba v kletnem prostoru 4,10 m2, lastniško parkirno mesto v garaži.
Temelji so izvedeni kot armiranobetonska temeljna plošča.
Streha objekta je ravna.
Stopnice notranje in zunanje in so armiranobetonske.
Nosilne stene: vse so izvedene v armiranem betonu.
Predelne stene znotraj stanovanja so obojestranske dvoslojne Knauf stene 10cm. V objektu predvidevamo izvedbo klasičnih mineralnih ometov, ki so po odločitvi investitorja izvedeni ročno ( Brušene - barvane stene in keramične stene ).
Tlaki: gotovi parket, prvi razred, hrast.
Vsa okna in balkonska vrata so izdelana iz PVC profilov, zastekljena s troslojnim termopan steklom, s toplotno prevodnostjo k= 0,7 W/m2 K, ter ustreznimi karakteristikami zvočne zaščite. Debelina stekla: 40 mm. Na vratih oziroma okenskih krilih so nameščene rolete na električni pogon.
Sanitarna oprema : viseča školjka Jika Lyra plus, viseči umivalnik Jika Lyra plus, Pipa Grohe Eurosmart, Tuš pipa Grohe Eurosmart, Armatura Grohe Eurosmart Tempesta 100, Tuš kadica Liti marmor, Tuš kabina Steklena
Okenske police: Notranje so sistemske PVC, zunanje pa so iz ALU pločevine.
Notranja vrata: CPL Polar Weiss 850 2100 P1 ali Dekor Bordeaux 850 2100
Zunanja vrata: Jeklena protivlomna požarna vrata BETA EI30 44dB
Toplotna črpalka: Zunanja enota HLAJENJE in OGREVANJE (zrak/zrak) / SAMO OGREVANJE (zrak/voda), Notranja enota OGREVANJE/HLAJENJE.
Kolesarnica : za potrebe parkiranja koles so kolesarnice v kleti stavbe
Parkirno mesto: vsakemu stanovanju pripada eno parkirno mesto v garaži ( povezan dostop z dvigalom ). Imate tudi možnost dokupa zunanjega parkirnega mesta.
Ekološki otok: umestili smo dva ekološka otoka. Oba sta umeščena poleg voznih poti na zunanjih parkiriščih.
Polnilnice za napajanje električnih avtomobilov: V objektu se predvidi instalacija za električne polnilnice avtomobilov. Od stanovanjskih razdelilcev RS se do posameznega parkirnega mesta položijo kabli.
Stanovanje je vseljivo takoj.
Pomagamo vam urediti financiranje ali vam pomagamo pri prodaji vaše nepremičnine.
Ne zamudite priložnosti za udobno in trajnostno bivanje v Radencih. Kontaktirajte nas za več informacij ali ogled.
Lep pozdrav, Marina

Nepremičninska agentka